




















zebegényi alkotóház
Munkatársak: Fridrich László, Kőhalmy Kristóf, Pásztor Csaba
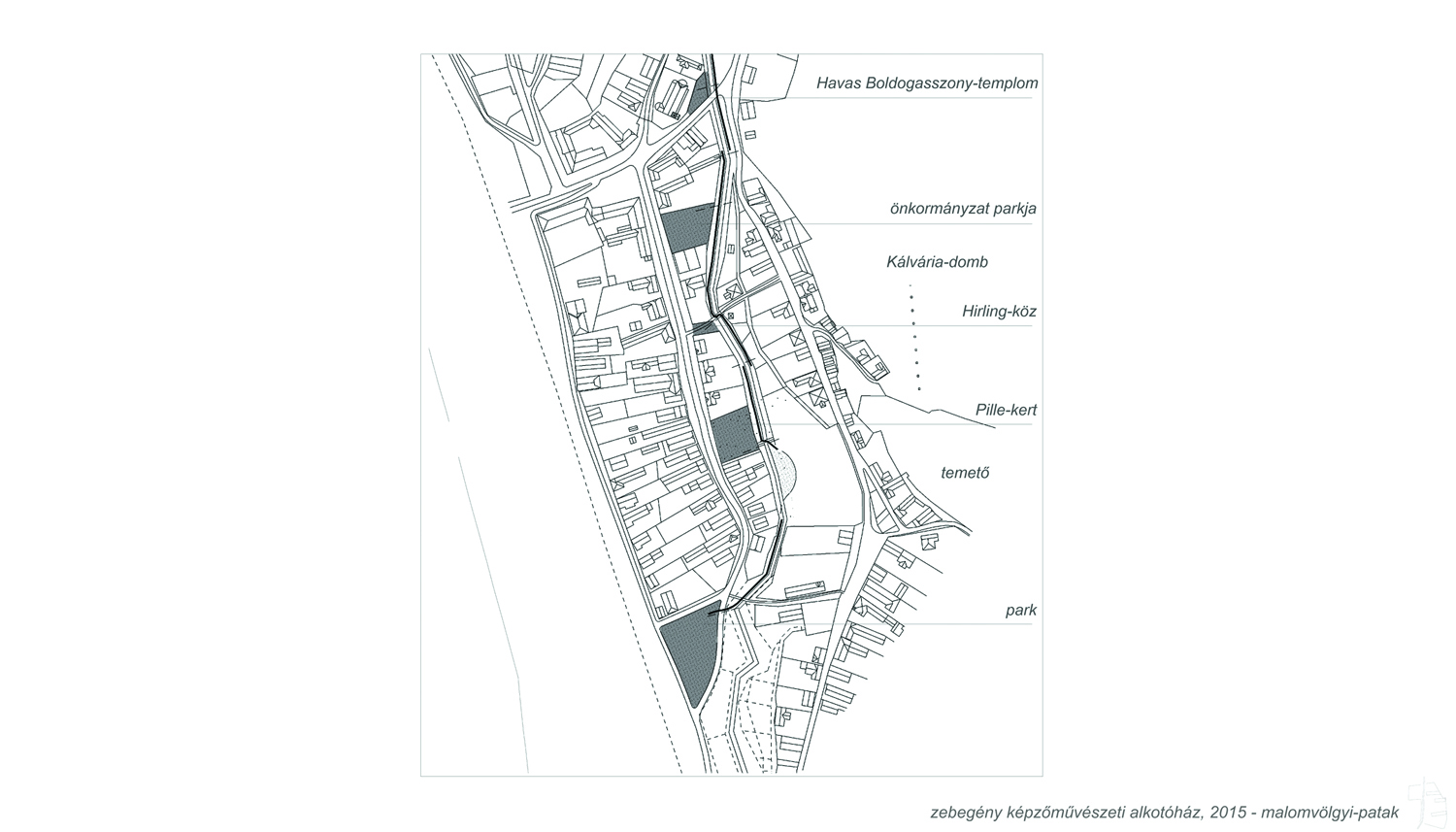
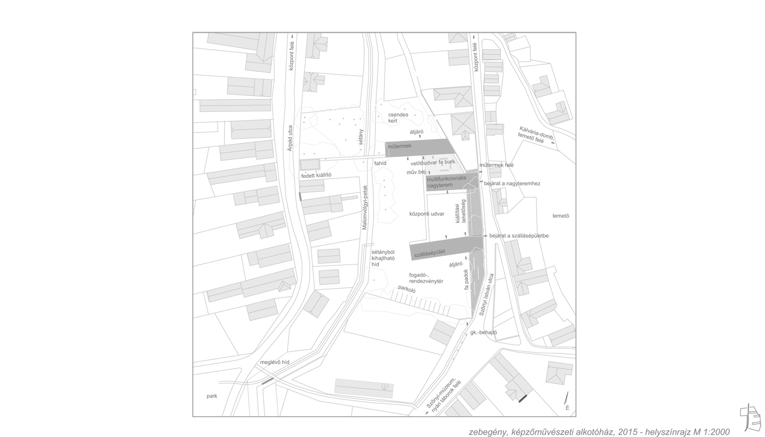
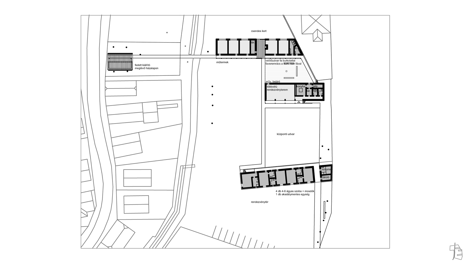
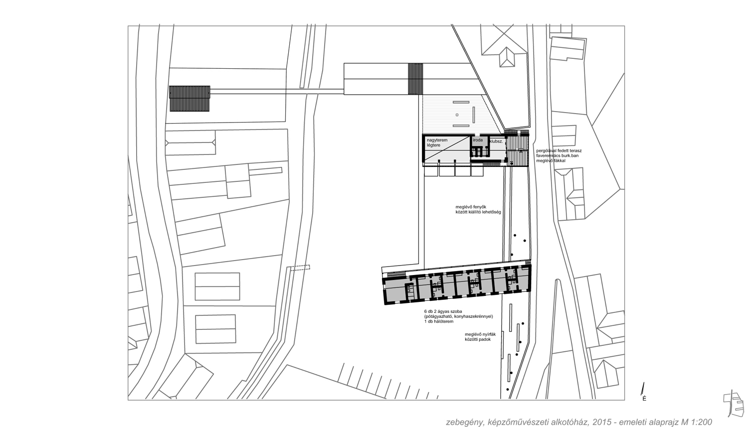
Zebegény déli patakparti zöldterületeit összekötő sétányhoz kapcsolódik a képzőművészeti alkotóház. A ház három különböző minőségű kert köré rendeződik: a szállásépület és a nagyépület között egy központi kert taláható, amely a patakra néz és kapcsolata van az utcafronttal az ott elhelyezkedő szabadtéri kiállítón keresztül. A szállásépülettől délre a fogadó- és rendezvénytéren sátrazási, parkolási és fesztivál lehetőség van. A központi kerthez kapcsolódó harmadik épülettömegben találnak helyet a műtermek, melyeken keresztül kapcsolódik a központi kert a csendes kerthez. Itt található egy körülülhető kemence és vetítésre is alkalmas udvar. A házak egy pergóla-tornácrendszerrel kapcsolódnak egymáshoz, melyek hol közlekedők, hol kiállítási, hol leülési lehetőséget nyújtanak, hol pedig árnyékolást adnak.
