









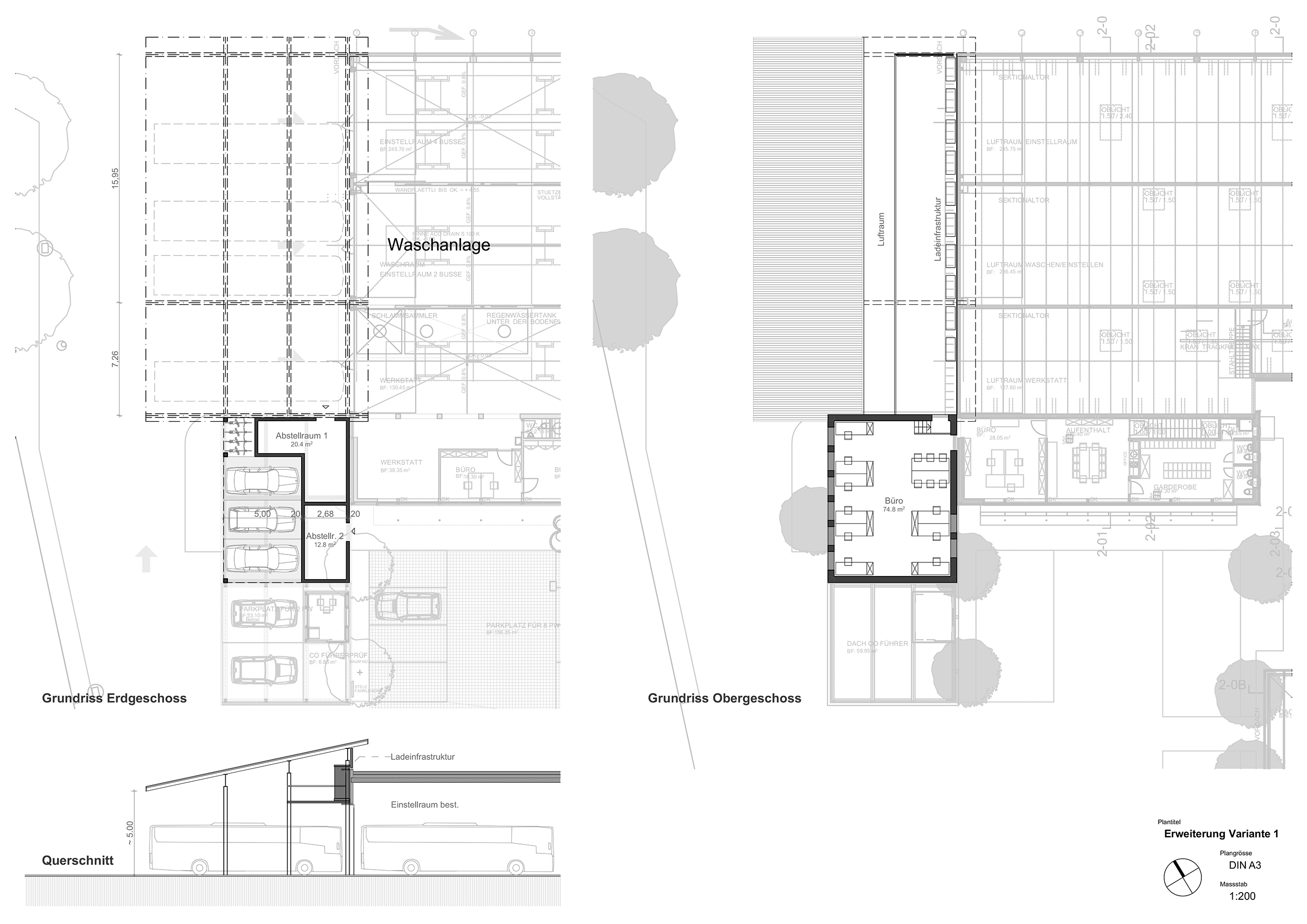
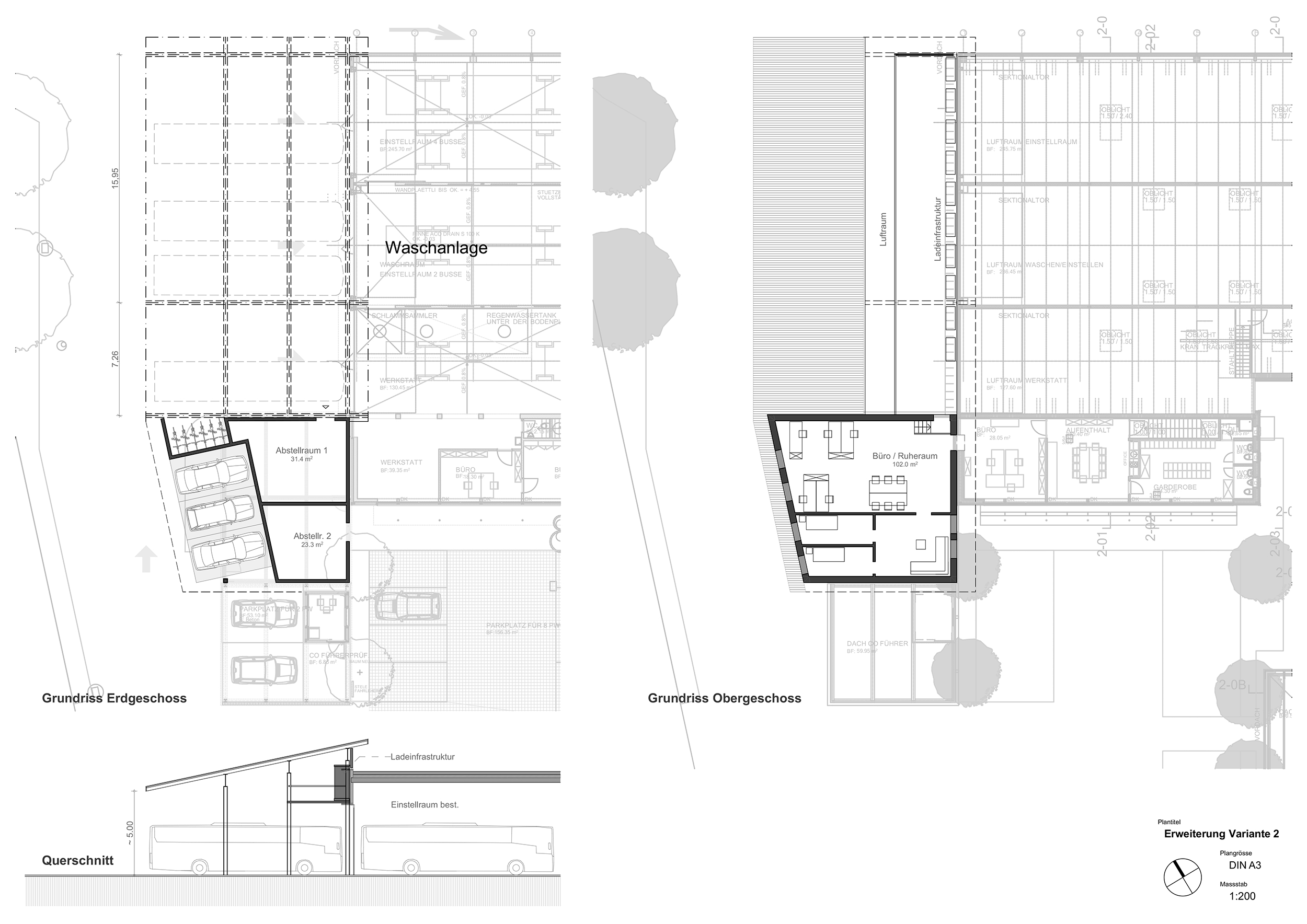
Középület
Buszgarázs bővítése, Amriswil, Svájc
2022
megvalósíthatósági tanulmány
Alkotó: Funk Bogdán
Munkatárs: Kőhalmy Nóra
Munkatárs: Kőhalmy Nóra
